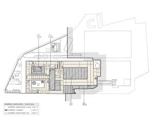
Plano 5 Recuperación Fábrica de Tabacos
La conservación de este complejo supone la conservación de la identidad de toda la ciudad a través de esta edificación, que en la actualidad es titularidad del Ayuntamiento y consta como bien inmueble de relevancia local.

El Ayuntamiento de Alicante tiene previsto adjudicar en Junta de Gobierno el próximo martes el contrato de las obras comprendidas en el proyecto de «Demoliciones tendentes a la recuperación tipológica de las edificaciones de la antigua Fábrica de Tabacos, situada en la calle Sevilla, nº2», a través de las concejalías de Urbanismo, que dirige el concejal Adrián Santos, y de Coordinación de Proyectos y Oficina de Captación de Fondos Europeos, a cargo del edil Antonio Peral y que tiene como misión implementar las operaciones de la Estrategia de Desarrollo Urbano Sostenible Integrado (EDUSI) Área Las Cigarreras. La actuación contempla cuatro fases para recuperar el claustro original, el patio interior, la fachada sur y la nave de cuchillos metálicos del siglo XIX con el derribo de edificaciones adheridas de baja calidad al edificio primitivo.

En la sesión de la Junta de Gobierno del próximo martes 9 de julio está prevista la adjudicación, a favor de la Unión Temporal de Empresas (UTE) formada por las mercantiles Eneas Servicios Integrales, S.A., y Sánchez y Lago, S.L., denominada abreviadamente «UTE Cigarreras» por 457.221 euros.

La actuación contempla cuatro fases para  devolver a su estado primitivo el claustro, el patio interior, fachada sur y la nave de chuchillos metálicos del siglo XIX con la demolición de edificaciones de baja calidad

El plazo de ejecución designado es de tres meses, para acometer el proceso de rehabilitación por fases incluido en el proyecto. Como se recuerda, esta actuación que forma parte de la Estrategia de Desarrollo Urbano Sostenible (EDUSI) Alicante – Área Las Cigarreras, cofinanciada por la Comisión Europea con cargo al Fondo Europeo de Desarrollo Regional (FEDER), en un 50%, dentro del Eje Urbano del Programa Operativo de de Crecimiento Sostenible, para la programación 2014-2020. «Una manera de hacer Europa».

Recuperación en cuatro fases
En ese sentido, la fase 1 comprende la zona 01 del claustro 01 y la zona 02: patio corredor. El objetivo es la recuperación de la forma original del claustro existente, como ya se hizo durante al rehabilitación anterior del claustro simétrico, de los arcos del mismo y del patio corredor central. Asimismo, la fase 2, referente al patio interior, tiene por objetivo la liberación del espacio central, medida que permitirá recuperar la forma original del mismo y mejorará la iluminación y la ventilación de los espacios adyacentes.

El fin es liberar el espacio adyacente a la nave de cuchillos metálicos del siglo XIX para permitir tanto una mejor iluminación y ventilación como la recuperación de la volumetría original

De esta forma, la fase 3, sin embargo, comprende tres zonas de actuación en la zona exterior sur. Esta operación consiste en la demolición de las edificaciones adheridas a lo largo del tiempo a la fachada sur original, pues son de baja calidad constructiva y tienen poco interés arquitectónico. También se acometerá en esta fase la recuperación de la fachada sur original. Finalmente, la fase 4 se centra en la mejora de la zona este, planta primera. El fin es liberar el espacio adyacente a la nave de cuchillos metálicos del siglo XIX para permitir tanto una mejor iluminación y ventilación como la recuperación de la volumetría original.

Un conjunto arquitectónico industrial único
El actual complejo edificado de la Tabacalera conforma un conjunto arquitectónico fundamental dentro del patrimonio urbano de la ciudad de Alicante. El núcleo original de la Fábrica de Tabacos fue construido entre 1741 y 1752, como Casa de Misericordia y residencia en la ciudad de Alicante del obispo de Orihuela. En ese sentido, el complejo urbano mezclaba fines asistenciales, hospitalarios y carcelarios en torno a los distintos patios que vertebraban las distintas actividades. En el centro, separando dos patios, se encontraba también una iglesia, hoy inexistente, que fue construida en 1745.

En 1798 la Casa de Misericordia pasó a ser propiedad del Estado, que mediante una Real Orden la destinó a ser la Fábrica de Tabacos. En 1828 se adecuó el edificio para este nuevo uso y lo amplió. Tras el incendio de 1844, el espacio sufrió distintas transformaciones industriales a lo largo del tiempo. En 1951 terminaron las negociaciones tras las que se cedieron las propiedades eclesiásticas de la finca a la fábrica, por lo que desaparecieron tanto la nave central de la antigua iglesia, la cúpula y la torre del reloj. En la actualidad, este conjunto de arquitectura industrial permite conocer la evolución de este tipo de construcciones en Alicante. Además, la fábrica tuvo una gran influencia en el desarrollo de los barrios cercanos, como Carolina, San Antón o San Fernando y de los pueblo de la Huerta de Alicante.

La conservación de este complejo supone la conservación de la identidad de toda la ciudad a través de esta edificación, que en la actualidad es titularidad del Ayuntamiento y consta como bien inmueble de relevancia local

De esta forma, al valor monumental se suma el simbólico de la memoria del trabajo en la comarca, dado que la fábrica se convirtió en un gran motor de crecimiento urbano desde mediados del siglo XIX. En ese sentido, la conservación de este complejo supone la conservación de la identidad de toda la ciudad a través de esta edificación, que en la actualidad es titularidad del Ayuntamiento y consta como bien inmueble de relevancia local, con grado de protección integral. Las sucesivas actuaciones de mejora, integradas en la Estrategia de Desarrollo Urbano Sostenible Integrado (EDUSI) alicante Área Las Cigarreras buscan devolver al complejo una imagen más acorde a su uso inicial y al mismo tiempo poder adaptar las instalaciones a nuevas utilidades para la ciudadanía.

Si deseas aportar tu opinión sobre esta noticia, por favor, deja aquí tu comentario.

Este sitio usa Akismet para reducir el spam. Aprende cómo se procesan los datos de tus comentarios.

Descubre más desde Alicante Al Día

Suscríbete ahora para seguir leyendo y obtener acceso al archivo completo.

Seguir leyendo